Some more card making inspiration along with a bonus cardmaking layout sketch for you to follow and use time and time again in todays blog post.
Today’s creation uses elements from The Gift Of Giving papercraft collection from Couture Creations.
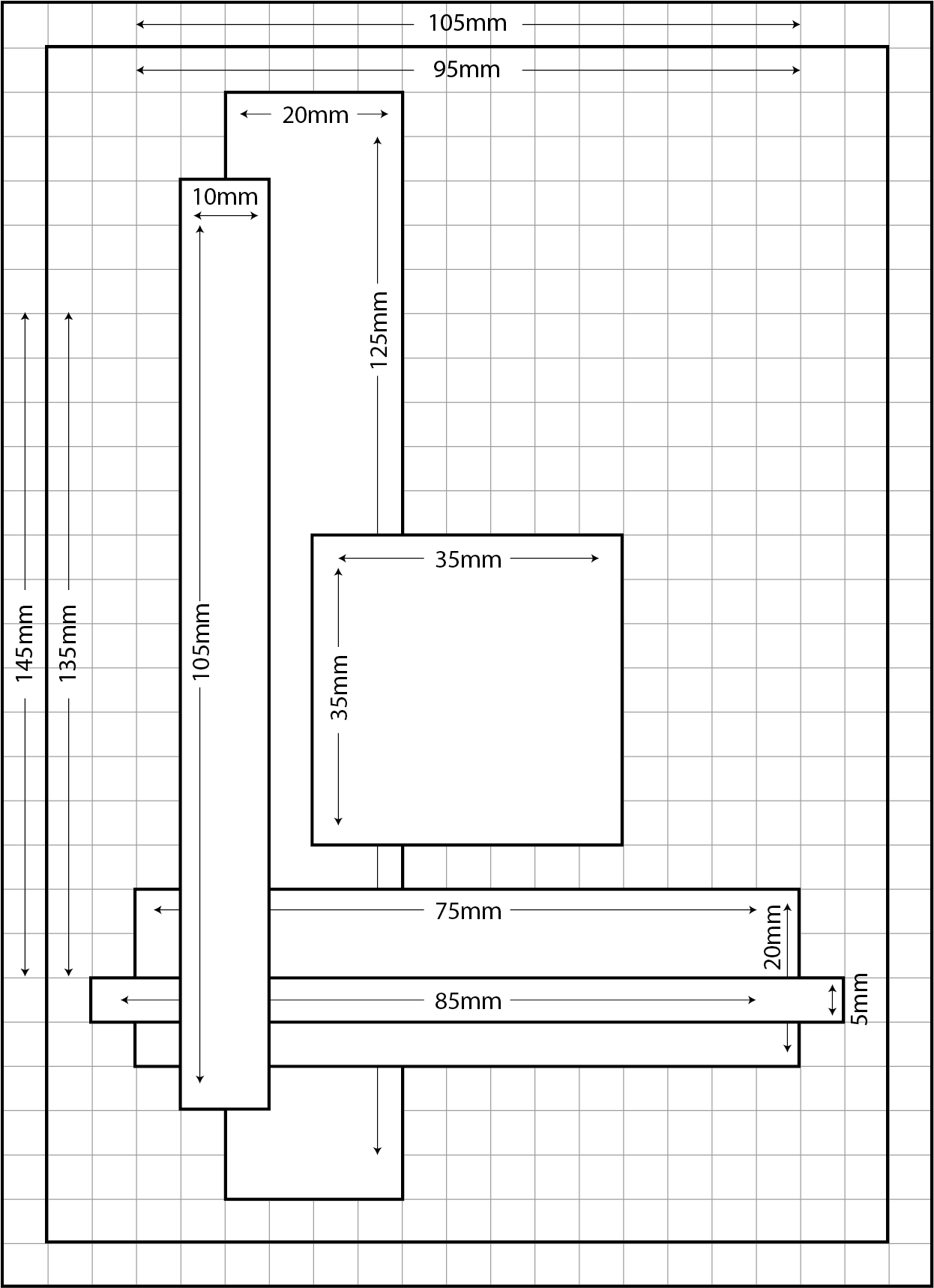
As an added bonus, for this post I have created a card layout template that you can use to recreate the background! More on that in a minute.

Stuff Used
- CO727945 – Merry Little Christmas Paper Pack
- CO727895 – The Gift of Giving Patterned Paper, Postcards and Stickers Set.
- A4 sheet of black cardstock. 300gsm or above is best as this will be the card base.
- Black dye inkpad and blending brush.
- CO723973 – Paper Trimmer
- CO726752 – Mini Scoreboard
- CO724389 – Turbo Glue Pen
- Assorted gems/dies/embellishments to coordinate with your choice of patterned paper and core cardstock.
Steps
First, cut an A4 sheet of cardstock down to 11.5 inches. Then cut this in half at 5.75 inches. Next, score at 4 and 1/8th inch on your scoreboard. Although we have used the imperial measurements from these tools, this will form a greetings card that measures 105mm x 145mm.
This is awesome as I can now switch to millimetres for the layering measurements. Hope I didn’t confuse you!
Next, download the card layout sketch and print/open it and cut the coloured cardstock and patterned paper according to the design.
The large 95mm x 135mm piece was cut from a piece of patterned paper from CO727945 – Merry Little Christmas Paper Pack
The smaller pieces were are cut from sheets found in CO727945 – Merry Little Christmas Paper Pack
Ink the edges of each piece with black ink.
Glue all of these in place on the card front according to the layout.
Next, utilise your stash to create a focal embellishment cluster. In the example shown I have used a selection of mini dies, adhesive gems and a sentiment banner from CO727895 – The Gift of Giving Patterned Paper, Postcards and Stickers Set.


Of course, you could always use this layout sketch for birthdays, weddings, anniversaries – its not locked to one occasion, use it all year round!
Hope you enjoyed this little overview. If you would like to see more of my design team explorations for Couture Creations, or more of those of my team mates, you can visit the archive here.
Thanks for stopping by and I look forward to sharing more with you soon!
Bye for now.
J :)

Thank you for another beautiful card and more design ideas.
LikeLiked by 1 person
Great card John, I saw your layout and thought immediately that this would be a great one for masculine cards.
Thank you so much for sharing, stay safe and enjoy your day.
LikeLiked by 1 person
I really like this card John the layering of the different sized block shapes is so clever thanks for inspiration x
LikeLike
Thank you for the kind words Judy :)
LikeLike
Yet another beautiful card x
LikeLiked by 1 person
Gorgeous card John xx
LikeLiked by 1 person